
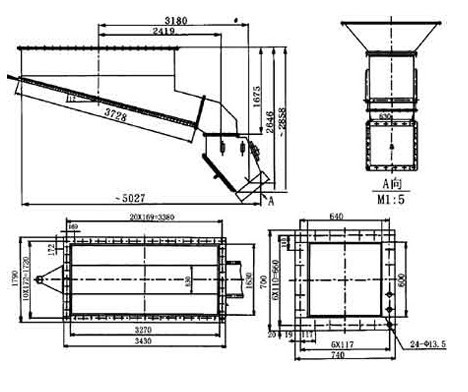
鎖風裝置主要用于水泥廠原料磨卸料鎖風。
技術性能:
1、生產能:通過能力為600t/h。
2、充氣出料溜子:充氣量285m3/h,風壓500mmH O。
3、鎖風器:充氣量200-250m3/h,風壓300mm2/H O。

提供建材機械、涂裝機械成套設備

鎖風裝置主要用于水泥廠原料磨卸料鎖風。
技術性能:
1、生產能:通過能力為600t/h。
2、充氣出料溜子:充氣量285m3/h,風壓500mmH O。
3、鎖風器:充氣量200-250m3/h,風壓300mm2/H O。

? 2022 南通德泰機械有限公司 備案號:蘇ICP備2023002659號-1 技術支持:天正企劃
很高興為您服務!
QQ咨詢

微信咨詢
15806270766